- Estructura: 4 módulos con perfilería metálica estructurada
- Terminaciones: Porcelanato en piso y Siding WPC en muros y cielo (color a elección del cliente)
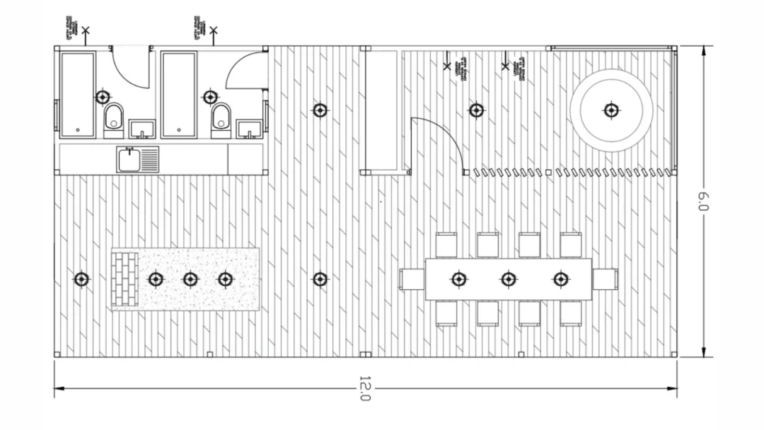
- Distribución de espacios:
- Parrilla con campana
- Mesón central
- Living-comedor
- 2 baños completos (ducha + tina de hidromasaje)
ARTEFACTOS INSTALADOS
- Lavaplatos simple
- Parrilla de acero inoxidable con campana
- Tina de hidromasaje
- Baño completo con mampara de vidrio templado
MOBILIARIO INCLUIDO
- Mesón de cocina
- Mesón de parrilla
- Mesón de lavaplatos
- Closet para termo
TERMINACIONES
- Piso: Porcelanato Walnut Taupe
- Muros interiores: Siding WPC tipo roble
- Cielo: Siding WPC tipo roble
- Muros de baños: Cerámica blanca






