- Estructura: 2 módulos con perfilería metálica estructurada
- Terminaciones: Premium en porcelanato y revestimientos WPC (color a elección del cliente)
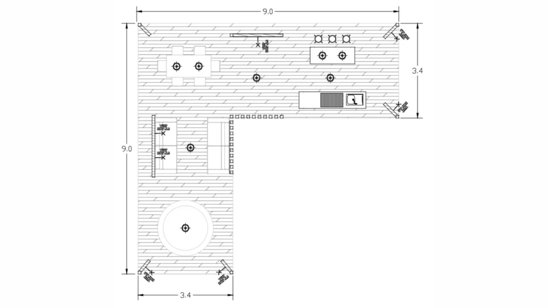
- Distribución de espacios:
- Parrilla con campana
- Mesón central tipo bar
- Comedor
- Living
- Tina de hidromasaje
ARTEFACTOS INSTALADOS
- Lavamanos simple
- Parrilla de acero inoxidable con campana
- Tina de hidromasaje
MOBILIARIO INCLUIDO
- Mesón central tipo bar
- Mesón de parrilla
TERMINACIONES
- Piso: Porcelanato Walnut Taupe
- Muros interiores: Siding WPC tipo roble + pintura negra mate
- Cielo: Siding WPC tipo roble






